- Woonoppervlakte
- Circa 117 m²
- Perceeloppervlakte
- Circa 124 m²
- Bouwjaar
- Gebouwd in 2006
- Aantal kamers
- 5 kamers (3 slaapkamers)
Op zoek naar een sfeervolle woning waar je zó in kunt trekken? Deze recent gebouwde en fraai afgewerkte middenwoning biedt alles wat je nodig hebt: een lichte woonkamer, complete keuken, drie slaapkamers, een ruime badkamer én een zonnige achtertuin met berging. Daarbij woon je aan een gezellig en ruim opgezet plein, op loopafstand van het centrum van Reusel.
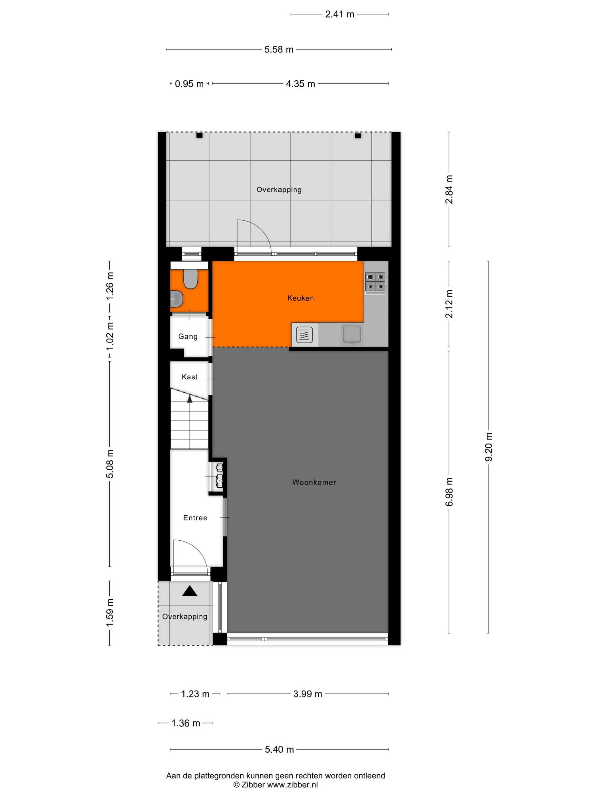
Begane grond
Via de hal, met moderne tegelvloer en vloerverwarming (doorlopend over de hele begane grond), kom je in de lichte woonkamer. Hier geniet je van veel daglicht en heb je toegang tot een praktische bergkast.
De open keuken in hoekopstelling is netjes ingericht en uitgerust met een gaskookplaat, afzuigkap, vaatwasser, koelkast met vriesvak en combimagnetron – alles wat je nodig hebt om lekker te koken.
Achterin vind je een portaal met het toilet (voorzien van fonteintje).
De achtertuin is fraai aangelegd met sierbestrating en bloemenborders, en dankzij de gunstige ligging op de zonzijde kun je hier volop genieten. Bovendien beschikt de tuin over een overkapping, een vrijstaande stenen berging en een achterom.
1e verdieping:
Op deze verdieping zijn twee grote slaapkamers, allemaal afgewerkt met een laminaatvloer en lichte wanden. Een extra kamer geeft toegang tot de zolderverdieping via een vaste trap. Op deze kamer zijn nu ook aansluitingen voor de wasapparatuur aanwezig.
De badkamer is compleet: volledig betegeld, met vloerverwarming, een wandcloset, grote wastafel met ombouw meubel, douche met zijstralen én een ligbad – heerlijk ontspannen na een lange dag!
2e verdieping:
Via een van de kamers op de 1e verdieping bereik je de zolderverdieping. Hier is een royale bergruimte en een fantastische zolderkamer, 3e slaapkamer gerealiseerd. Door de dakkapel, over de volle breedte van de woning, is hier een master bedroom ontstaan.
Pluspunten op een rij
- Rustige maar centrale ligging in Reusel
- Zonnige achtertuin met berging en achterom
- Voldoende parkeergelegenheid in de omgeving
- Geheel geïsoleerd
- Begane grond volledig voorzien van vloerverwarming
- Instapklaar, fris en licht afgewerkt
- Bouwjaar: 2006
- Perceeloppervlak: 124 m2
- Woonoppervlakte: 117 m2
Kortom: een ideale woning voor starters die op zoek zijn naar ruimte, comfort en een fijne plek om thuis te komen!
Overdracht
- Vraagprijs
- € 399.000 k.k.
- Status
- Verkocht onder voorbehoud
- Aanvaarding
- In overleg
Bouw
- Object type
- Eengezinswoning, tussenwoning
- Soort bouw
- Bestaande bouw
- Bouwjaar
- 2006
- Soort dak
- Lessenaardak bedekt met pannen
Oppervlakte en inhoud
- Woonoppervlakte
- 117 m²
- Perceeloppervlakte
- 124 m²
- Inhoud
- 415 m³
- Externe bergruimte
- 9 m²
- Gebouwgeb. buitenruimte
- 18 m²
Indeling
- Aantal kamers
- 5 kamers (3 slaapkamers)
- Aantal badkamers
- 1 badkamer
- Badkamervoorzieningen
- Ligbad, toilet, douche, wastafel, wastafelmeubel
- Aantal woonlagen
- 3 woonlagen
- Voorzieningen
- Mechanische ventilatie
Energie
- Energielabel
- A
- Energielabel registratie
- 30-10-2017
- Isolatie
- Dakisolatie, muurisolatie, vloerisolatie, dubbel glas
- Verwarming
- Cv-ketel
- Warm water
- Cv-ketel
- Cv ketel
- Agpo combiketel gas gestookt uit 2006 (eigendom)
Buitenruimte
- Ligging
- Aan rustige weg, in centrum, in woonwijk, vrij uitzicht
- Tuin
- Achtertuin, voortuin
- Afmetingen achtertuin
- 55 m² (10 meter diep en 5.5 meter breed)
- ligging tuin
- Gelegen op het zuidoosten en bereikbaar via achterom
Bergruimte
- Schuur / berging
- Vrijstaand steen
- Voorzieningen
- Voorzien van elektra
Garage
- Soort garage
- Geen garage
Parkeergelegenheid
- Soort parkeergelegenheid
- Openbaar parkeren
Energieverbruik in Reusel
Energielabel deze woning
Energielabel A
Publicatie energielabel: 30-10-2017
Stroomverbruik per jaar
(Gemiddelde tussenwoning in Reusel)
Gasverbruik per jaar
(Gemiddelde tussenwoning in Reusel)
* Cijfers zijn afkomstig van het CBS en bedoeld als indicatie en kunnen verschillen voor deze woning
Indicatie hypotheeklasten
Eigen inleg:
Spaargeld / overwaarde
Rente:
Laagste 10-jaars rente
Laagste 10-jaars rente
2,85% - Centraal Beheer Groen... - NHG
3,08% - Centraal Beheer Groen... - 80%
Laagste 20-jaars rente
3,29% - Centraal Beheer Groen... - NHG
3,52% - Centraal Beheer Groen... - 80%
Laagste 30-jaars rente
3,41% - Centraal Beheer Groen... - NHG
3,74% - Centraal Beheer Groen... - 80%
Hypotheek:
Bruto maandlasten: € 0 p/m
Netto maandlasten: € 0 p/m
Hoe berekenen we dit?
Het rentepercentage is gebaseerd op de laagste 10 jaars vaste rente voor één hypotheekdeel. De vermelde rente (2.85% met NHG) is gecontroleerd op 19-01-2026. Deze berekening is gebaseerd op een annuïteitenhypotheek die volledig wordt afgelost, waarbij de maandlasten gedurende de gehele looptijd gelijk blijven. De werkelijke rente en netto maandlasten kunnen variëren, afhankelijk van uw persoonlijke situatie en de hypotheekverstrekker. Raadpleeg een financieel adviseur voor een nauwkeurige berekening en advies. Aan deze berekening kunnen geen rechten worden ontleend; het dient enkel als indicatie.
Documentatie
Kadastrale kaart
Leefomgeving
Kadaster
Plattegronden PDF
BAG uittreksel
WOZ waarderapport
Brochure
3D Plattegronden
Bekijk onze website
Bezichtiging
Bod uitbrengen
Waardebepaling
Zoekopdracht
Alles downloaden
Zonnegrenzen bekijken
Op de kaart
Inwoners in Reusel
Cijfers voor postcodegebied 5541
- Totaal aantal inwoners
- 8705 inwoners
- Mannen
- 51%
- Vrouwen
- 49%
Inwoners in Reusel
Cijfers voor postcodegebied 5541
- tot 15 jaar
- 17%
- 15 tot 25 jaar
- 10%
- 25 tot 35 jaar
- 25%
- 45 tot 65 jaar
- 27%
- 65 en ouder
- 21%
Huishoudens in Reusel
Cijfers voor postcodegebied 5541
- Eenpersoons zonder kinderen
- 29%
- Meerpersoons zonder kinderen
- 34%
- Huishoudens zonder kinderen
- 63%
Huishoudens in Reusel
Cijfers voor postcodegebied 5541
- Huishoudens met één kind
- 5%
- Huishoudens met meerdere kinderen
- 31%
- Huishoudens met kinderen
- 36%
Woningen in Reusel
Cijfers voor postcodegebied 5541
- Woningen voor 1945
- 7%
- Woningen tussen 1945 en 1965
- 15%
- Woningen tussen 1965 en 1975
- 17%
- Woningen tussen 1975 en 1985
- 17%
- Woningen tussen 1985 en 1995
- 16%
Woningen in Reusel
Cijfers voor postcodegebied 5541
- Woningen tussen 1995 en 2005
- 10%
- Woningen tussen 2005 en 2015
- 13%
- Woningen na 2015
- 4%
- Huurwoningen
- 20%
- Koopwoningen
- 80%
Overige in Reusel
Cijfers voor postcodegebied 5541
- Gemiddelde WOZ waarde
- € 287.000,-
- Personen onder de 65 met uitkering
- 5%
Overige in Reusel
Cijfers voor postcodegebied 5541
- Adressen per km²
- 783
- Stedelijkheid (schaal 1 op 5)
- 40%
Korte feiten over Reusel
Reusel (Brabants: Reuzel) is de hoofdplaats van de gemeente Reusel-De Mierden, in de Nederlandse provincie Noord-Brabant. Reusel is gelegen in regio de Kempen. Dichtstbijzijnde grote steden zijn Turnhout, Tilburg en Eindhoven. Reusel is een van de Acht zaligheden.
Ben Straatman Makelaardij
Indien u vragen heeft of u wilt een bezichtiging inplannen, dan kunt u gebruik maken van het formulier hiernaast. Er zal daarna op korte termijn contact met u worden opgenomen.
Contact opnemen
Ben Straatman Makelaardij
Welkom bij Ben Straatman Makelaardij, een eigentijds Kempisch makelaarskantoor. Of je nu op zoek bent naar een makelaar om je woning te verkopen, je droomhuis gevonden hebt, of hulp nodig hebt bij gedeeltelijke zelf-facilitatie van de aankoop of verkoop, bij ons ben je aan het juiste adres. Wij bieden de professionele ondersteuning en zekerheid die je zoekt.
Mijn naam is Ben Straatman, oprichter van Ben Straatman Makelaardij. Geboren in Eindhoven en sinds mijn zevende woonachtig in Reusel - een echte Kempenaar dus. Getrouwd met Sanne en trotse vader van vier kinderen (Neel, Mette, Vik en Nand), woon ik met mijn gezin in het prachtige buitengebied van Reusel. Naast mijn werk als gedreven makelaar, ben ik graag thuis bij mijn gezin, sport ik wanneer het kan, luister ik naar muziek en geniet van ons gezinsleven.
Wil je meer weten over wat wij voor je kunnen betekenen? Ik kom graag langs om de mogelijkheden te bespreken, of nodig je uit voor een kop koffie op ons kantoor.
Nieuwste reviews
-
Luuk Huijbregts
Ben is een hele prettige, deskundige makelaar en tevens fijn in de omgang. Ons huis was binnen no time verkocht!
-
Ten Einde 17
Ben is een hele prettige, deskundige makelaar en tevens fijn in de omgang. Ons huis was binnen no time verkocht!
-
de Speelman 27
Ben heeft ons geweldig geholpen! Deskundig, enthousiast en met goed advies dacht hij overal in mee. Altijd bereikbaar en alles soepel gerege...